Objektnummer: 47650130-1913014 | SIP-ID: 6620-15
Neubau-Grundstücke in Lage


Kaufpreis
144.000 €
Grundstücksfläche
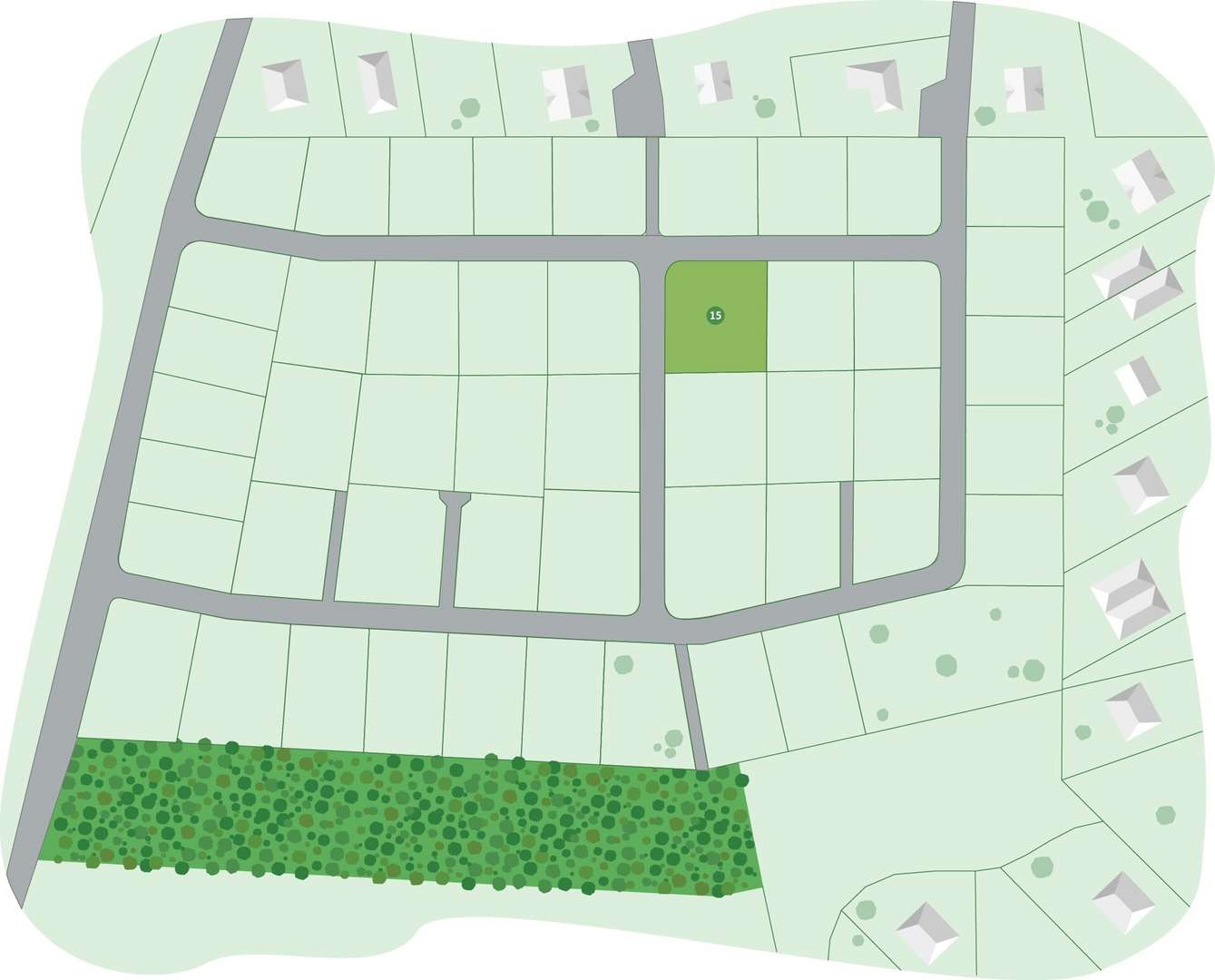
725 m²
Adresse
32791 Lage
Frau Petra Kotzian
Preise und Kosten
Kaufpreis
Courtage Hinweis
Lage
Straße nicht freigegeben
32791 Lage
Loading (MapContainer)
Wie geschaffen für Familien ist das begehrte Baugebiet im südlichen Stadtbereich von Lage. Kindergarten und die Grundschule sind von hier bequem zu Fuß zu erreichen. Selbst das Zentrum von Lage ist über Wege durch das bereits bestehende Wohngebiet in ca. 20 Fußminuten zu erreichen.
Objektbeschreibung
Ein neues Lebensgefühl für die Familie!
Das Gebiet „Obere Bült“ bietet Ihnen sonnige Familiengrundstücke zur Bebauung. In gefragter, beschaulicher Wohnlage und unweit des Zentrums Lage entsteht dieses neue Wohngebiet und Sie können hier den Grundstein für Ihre Wohnzukunft legen. Die neuen Grundstücke in unterschiedlichen Größen sind sinnvoll zugeschnitten – teilweise erfolgt eine Zuwegung über einen zusätzlich zu erwerbenden Privatweg. Ein Nahwärme-Konzept der Stadt Lage sorgt für eine zukunftsorientierte Wärmelieferung. Zusätzliche private Solaranlagen und auch Dachbegrünungen können hier einen wichtigen Beitrag zu energieeffizientem Wohnen leisten.
Bitte beachten Sie die genauen Vorgaben aus dem Bebauungsplan sowie die Leistungen, die Sie als Bauherr erbringen müssen. Eine Aufstellung sowie Informationen hierzu sind beigefügt.
Die konkrete Bebaubarkeit dieser Grundstücke gemäß Bebauungsplan klären Sie bitte mit Ihrem Architekten oder Bauträger ab.
Die Verkäuferin übernimmt keine Garantie für eine bestimmte Bebaubarkeit.
Bitte berücksichtigen Sie die Bebauungsverpflichtung von 3 Jahren ab Kauf des Grundstücks. Ein Weiterverkauf der unbebauten Grundstücke ist nicht vorgesehen.
Beim Erwerb des Grundstücks fällt für Sie keine zusätzliche Käufercourtage an.
Das Gebiet „Obere Bült“ bietet Ihnen sonnige Familiengrundstücke zur Bebauung. In gefragter, beschaulicher Wohnlage und unweit des Zentrums Lage entsteht dieses neue Wohngebiet und Sie können hier den Grundstein für Ihre Wohnzukunft legen. Die neuen Grundstücke in unterschiedlichen Größen sind sinnvoll zugeschnitten – teilweise erfolgt eine Zuwegung über einen zusätzlich zu erwerbenden Privatweg. Ein Nahwärme-Konzept der Stadt Lage sorgt für eine zukunftsorientierte Wärmelieferung. Zusätzliche private Solaranlagen und auch Dachbegrünungen können hier einen wichtigen Beitrag zu energieeffizientem Wohnen leisten.
Bitte beachten Sie die genauen Vorgaben aus dem Bebauungsplan sowie die Leistungen, die Sie als Bauherr erbringen müssen. Eine Aufstellung sowie Informationen hierzu sind beigefügt.
Die konkrete Bebaubarkeit dieser Grundstücke gemäß Bebauungsplan klären Sie bitte mit Ihrem Architekten oder Bauträger ab.
Die Verkäuferin übernimmt keine Garantie für eine bestimmte Bebaubarkeit.
Bitte berücksichtigen Sie die Bebauungsverpflichtung von 3 Jahren ab Kauf des Grundstücks. Ein Weiterverkauf der unbebauten Grundstücke ist nicht vorgesehen.
Beim Erwerb des Grundstücks fällt für Sie keine zusätzliche Käufercourtage an.
Ausstattung
- Bebaubarkeit gemäß B-Plan gegeben
- Nahwärme-Anschlüsse an das Energienetz
der Stadt Lage gegeben (Anschlussverpflichtung)
- Glasfaseranschlüsse gelegt
- Installation von Solaranlagen möglich
- Dachbegrünung auf Nebengebäuden (Carport/Garage)
möglich
- Regenrückhaltebecken für das Wohngebiet vorhanden
Zusätzliche Kosten zum Grundstückskauf:
- Versorgungsschächte auf den Grundstücken bereits gesetzt
und mit zzgl. ca. 11.000 € einzukalkulieren
- die Kosten für sämtliche Hausanschlüsse ab
Grundstücksgrenze sind von den Bauherren zu tragen
- rechnen Sie mit den ortsüblichen Hausanschlusskosten
- Nahwärme-Anschlüsse an das Energienetz
der Stadt Lage gegeben (Anschlussverpflichtung)
- Glasfaseranschlüsse gelegt
- Installation von Solaranlagen möglich
- Dachbegrünung auf Nebengebäuden (Carport/Garage)
möglich
- Regenrückhaltebecken für das Wohngebiet vorhanden
Zusätzliche Kosten zum Grundstückskauf:
- Versorgungsschächte auf den Grundstücken bereits gesetzt
und mit zzgl. ca. 11.000 € einzukalkulieren
- die Kosten für sämtliche Hausanschlüsse ab
Grundstücksgrenze sind von den Bauherren zu tragen
- rechnen Sie mit den ortsüblichen Hausanschlusskosten
Objektdaten
PLZ
Ort
Grundstücksfläche
Finanzierung
Sie wünschen sich unverbindliche Konditionen?
Bitte wählen sie Ihre zuständige Sparkasse aus.